Wärmegedämmte Modullösungen für Balkone, Loggien und ganze Fassaden

Für die wärmegedämmte Verglasung von Balkonen, Loggien oder auch ganzen Fassaden bietet Solarlux die Ecoline Glas-Faltwand auch in unterschiedlichen Modulvarianten inklusive transparenter Brüstung an. Diese Module wurden besonders für die Anforderungen in der seriellen und energetischen Sanierung entwickelt, eignen sich aber auch für Glas-Fassaden mit Öffnungsvariante im Neubau. Je nach Ausstattung lassen sich diese Module auf der Betonplatte montieren oder als Vorhanglösung vor der Bodenplatte. Im Statikriegel werden dafür verschiedene Varianten der Ertüchtigung ermöglicht.

Das Standard-Modulsystem Ecoline M fügt ein Brüstungselement mit einer Ecoline Glas-Faltwand zu einer festen Einheit mit umlaufendem Glas-Faltwand-Rahmen zusammen. Für alle Module gilt die projektspezifische Konfiguration der Größe, Flügel und Öffnungsvarianten. Die Ecoline-Profile bieten durchgängig schlanke Ansichten. In der Ausführung überzeugen die vorgefertigten Elemente durch kurze Montagezeiten. Die 3-fach-Verglasung ermöglicht optimale Uw-Werte von 1,1 für hohe Anforderungen an eine energieeffiziente Gebäudehülle. Der Nutzen für den Gebäudebetreiber sowie die Nutzer*innen liegt zum einen in der gewonnenen Energieeffizienz sowie der weiten Öffnungsmöglichkeit, die den Balkoncharakter erhält.

Poppenrade Schnitt
Poppenrade Schnitt

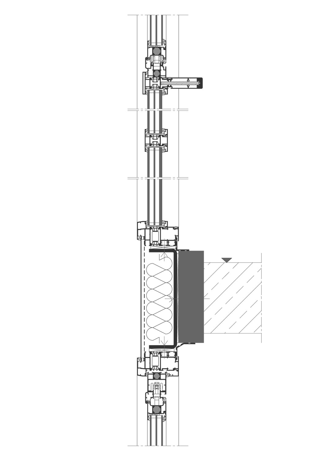
Das Vorhangmodul

Das wärmegedämmte Fassadenmodul Ecoline MF eignet sich für Sanierungsprojekte, bei denen die Fassade als vorgehängte Lösung vor die bestehende Betonplatte montiert wird. Es bietet durch ein zusätzlich umlaufendes Profil eine optimale Lastabtragung des Statikriegels und ermöglicht zusätzlich die integrierte Aufnahme von Bauanschlussprofilen im Modulrahmen.

Der große Vorteil des gewählten Balkon-Systems: Im Gegensatz zur konventionellen Sanierung bleibt die Raumgröße der Loggia erhalten. Es ergibt sich kein Raumverlust durch allseitige Wärmedämmung, der beim Einsatz eines Wärmedämmverbundsystems immerhin bis zu 20% der Fläche ausmacht. 

Jetzt bestellen: Produktdetails Ecoline M

Sanieren mit Modulen

Die Vorteile

Icon isolation thermique
Icon isolation thermique
Wärmedämmung
Perfekte Profile für Wärme- und Schallschutz
Icoon inbraakwerendheid
Icoon inbraakwerendheid
Einbruchhemmung
Sicherheit nach RC3/RC2
wohnraumgewinnung
wohnraumgewinnung
Wohnraumgewinnung
dank wärmegedämmten Modulen
icone mise en lumière
icone mise en lumière
Highlight
99 mm Ansichtsbreite
Icône pour l'étanchéité à la pluie battante
Icône pour l'étanchéité à la pluie battante
Flügelzentrierung
Dichtheit gegen Schlagregen und Windlastresistenz
Icoon voor maximale opening
Icoon voor maximale opening
Maximale Öffnung
Innen und Außen verschmelzen

Systemdetails, die überzeugen

Technik & Downloads

Inspirationen