Filigranes Design für gesundes Wohnen

Das Kastenfenster Soundline M von Solarlux ist eine innovative Lösung für erhöhten Schallschutz in städtischen Wohnsituationen. Es wurde speziell für die Anforderungen an gesundes Wohnen entwickelt und für den Einsatz an Fenstern in Neubau und Sanierung ausgelegt. Gemeinsam mit dem Ingenieurbüro IfB Sorge, einem Spezialisten für Bauphysik, wurde das Soundline M System konzipiert und durch die SG-Bauakustik geprüft. Mit dem vorgesetzten Modul ist eine erhöhte Schalldämmung von bis zu 20 dB gegenüber dem einfachen Standardfenster erreichbar. Zudem überzeugt das Kastenfenster mit einer erhöhten Wärmedämmung sowie der eleganten, filigranen Optik.
Solarlux verfügt über ein Patent für die Soundline M: Patent pending No. 10 2025 132 544.

Kastenfenster für Schallschutz und Gewerbelärm
Kastenfenster für Schallschutz und Gewerbelärm

Leistung: Schallschutz und Wärmedämmung

Die vorgesetzten Soundline M Module sorgen für erhöhten Schallschutz als auch für eine zusätzliche Wärmedämmung. 

Schalldämmung: geprüft durch SG-Bauakustik:
Bewertung nach ISO 717-1: Rw (C;Ctr) = 50 (-1;-5) dB

  • Schalldämmung geschlossen: bis zu 50 dB
  • Schalldämmung Lüftungsstellung: bis zu 37 dB

Wärmedämmung: thermische Prüfung durch Bauwerk - Ingenieurbüro für Bauphysik

  • Normfenster Alu
    Uw, Kastenfenster = 1,1 (1,086) W/m²K
  • Normfenster Holz
    Uw, Kastenfenster = 0,69 (0,691) W/m²K 

 

Kastenfenster für urbanen Wohnungsbau
Kastenfenster für urbanen Wohnungsbau

Vorteile im Überblick

  • Zertifiziertes modulares Baukastensystem zur vorgesetzten Montage
  • Geprüfte Leistungswerte für Schallschutz und Wärmedämmung
  • Natürliche Belüftung zur Vermeidung von Überhitzung
  • Einfache Reinigung der äußeren Scheiben von innen
  • Plug & Play-Montage für schnelle Installation
  • Bodentiefe Elemente mit intergrierter Absturzsicherung möglich
  • Optional mit integrierten Beschattungselementen
  • Filigrane Glasoptik ohne vertikale Profile
  • Maximale Lichttransparenz
  • Patentierte Lösung: Patent pending No. 10 2025 132 544.8
„Die Produktgruppe Soundline M ist ein zertifiziertes- und innovatives Kastenfenster. Aufgrund der individuellen Anpassungsoptionen in der Systemkonstruktion, werden alle Anforderungen im Bereich Schallschutz, Klimalasten und Sicherheit gelöst. Das patentierte System stellt eine natürliche und verdeckt liegende Innenraumbelüftung sicher. Einfach genial und ein „must have“, wenn es um das Thema Schallschutz in der Außenfassade geht! Schnittstellen zu Fenstersystemen und Bauanschlüssen wurden optimal ausgelegt und geprüft. Das filigrane und kubische Außendesign ist genau der architektonische Ansatz in der heutigen Zeit. “
Michael Meyer
Leitung Produktmanagement Solarlux
Jetzt kostenlose Produktinfo bestellen

Technik & Downloads

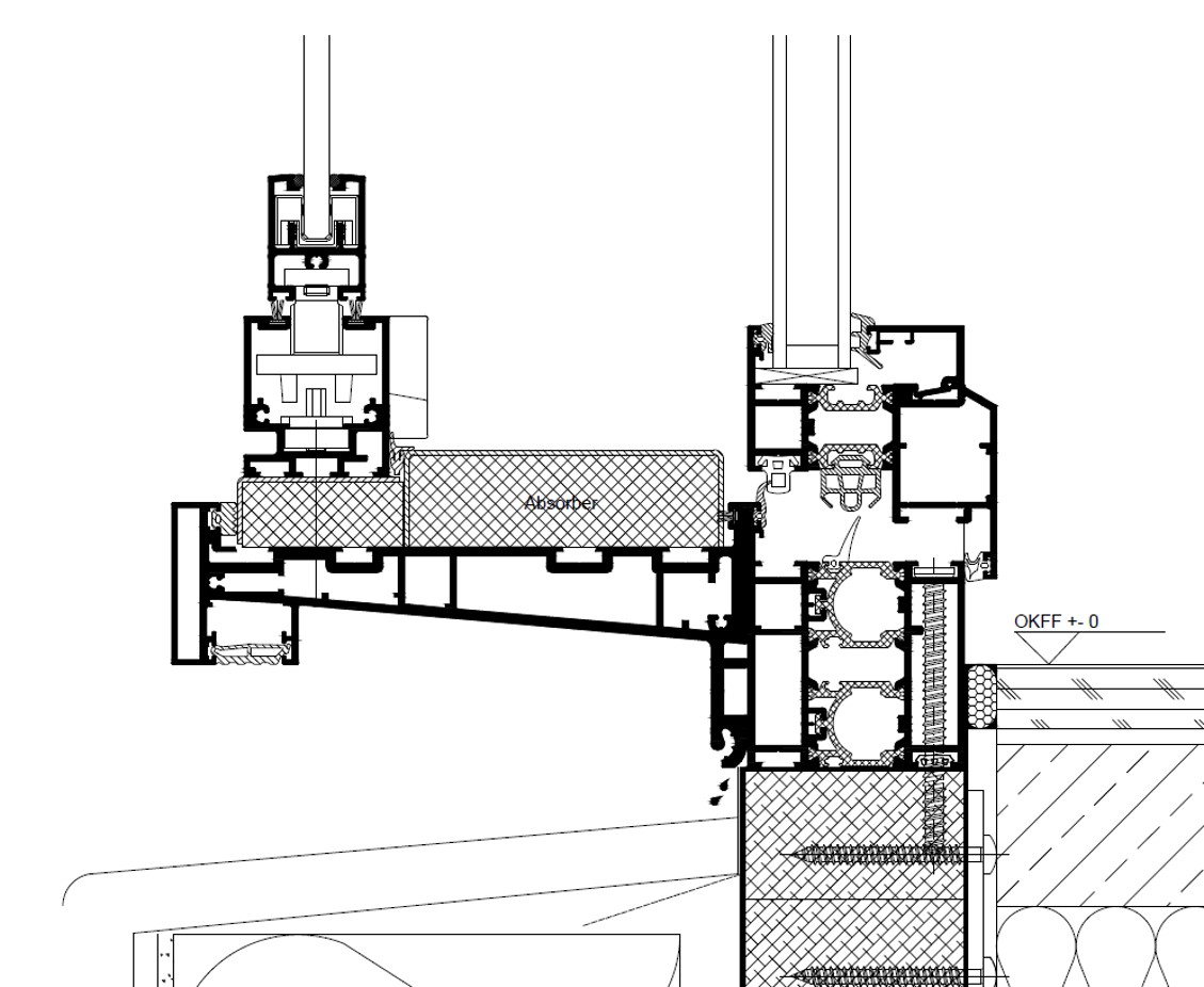
Systemschnitt Proline A
Systemschnitt Proline A

Technische Details

Bautiefe: 180 mm / 500 mm
Schalldämmung geschlossen: Bis zu 50 dB
Schalldämmung Lüftungsstellung: Bis zu 37 dB
Rahmenmaterial: Aluminium mit integrierten Absorbern
Innenelement: Holz, Aluminium oder Kunststoff
Außenelement: Schiebe-Dreh-System Proline T oder Schiebesystem Proline S
Reinigung: Von innen möglich
Montage: Plug & Play