cero-skyvevindu strandhus Danmark

Bildene på denne siden, hvis ikke annet er oppgitt: © Malik Pahlmann for Solarlux

cero er et attraktivt produkt, ettersom det har en smal ramme og samtidig svært store mål.
Jan Wenzel, arkitekt

Naturen som inspirasjon

Vestkysten av Danmark har et fascinerende landskap preget av langtrukkede sanddyner som er tilnærmet uberørt av menneskelig påvirkning. Det er ikke minst takket være den forsiktige måten feriestedene er integrert i naturen på: Husene rager ikke opp over sanddynene, og er dermed samtidig beskyttet mot vær og vind. Arkitekt Jan Wenzels siste bygg består av noen få, sentrale materialer. Til tross for den lavtliggende, diskrete plasseringen, åpner bygningen seg fullstendig mot omgivelsene.

Oppdragsgiveren ønsket seg et feriested med plass til hele familien. København-arkitekten Jan Wenzel visste fra begynnelsen av at naturen selv og de unike sanddynene på Danmarks vestkyst ville bli den viktigste inspirasjonen for byggeplanene: Han tegnet et strandhus som er beskyttet mot innsyn og værpåvirkning, samtidig som glassfrontene fra tak til gulv lar den særegne naturen og det fascinerende nordiske lyset slippe uhindret inn i huset.

Strandhaus Danmark - Naturen som den viktigste inspirasjonskilden.
Med glassfasader fra gulv til tak, hvorav noen kan flyttes, åpner strandhuset seg mot landskapet, samtidig som det er godt beskyttet mot vær, vind og nysgjerrige blikk mellom de svakt bølgende sanddynene.

Skyvedører henter naturen inn i huset

Det er i alt fire cero-skyvevinduer fra Solarlux med ni bevegelige skyveelementer, som kan åpnes helt opp mot gårdsplassen og som opphever skillet mellom inne og ute. Den største skyvedøren er 7,30 m lang og 3,10 m høy, og strekker seg over hele oppholdsrommets lengde. Tre andre cero-skyvevinduer, med 3 m bredde og to skyveelementer hver, sørger for en barrierefri utgang fra de motliggende soverommene.

VIDEO: STRANDHUS MED CERO-SKYVEDØRER

Elektriske drivverk ble bevisst valgt bort i alle rom, ettersom byggelementene med en tyngde på opptil 1000 kg kan åpnes og lukkes på en svært enkel måte. Det er takket være den sofistikerte løpemekanismen i rustfritt stål med integrerte løperuller som sørger for at belastningen fordeles jevnt.

En grenseløs opplevelse av rommet

Å våkne opp en feriedag midt i det unike sanddynelandskapet på vestkysten av Danmark og føle seg i ett med naturen – det er mulig takket være de store cero-skyvedørene fra Solarlux. Den filigrane rammen muliggjør en glassandel på opptil 98 prosent, og sørger for at den helt spesielle livsfølelsen også er til stede når de gjennomsiktige byggelementene er lukket.

Friluftskjøkken med noen enkle håndgrep

Hjertet i strandhuset er kjøkkenet: Det er forbindelsesleddet mellom soveromsdelen og stuen, og kan åpnes helt opp i en bredde på nesten seks meter på begge langsidene. Forvandlingen til et trendy friluftskjøkken er mulig takket være foldedører fra Solarlux: I alt seks elementer kan skyves sammen som et trekkspill på begge sider, og parkeres diskret i form av en smal glassbunt på siden av terrassen. Det gir en åpningsbredde på 5,80 m og en åpningshøyde på 3,10 m.

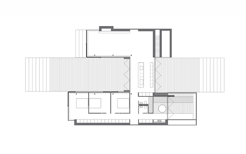
Grunnplan
Strandhaus Dänemark - Zeichnung Floorplan
Zeichnung: ©Jan Wenzel

VIDEO: INTERVJU MED ARKITEKT JAN WENZEL

Oversikt over fordelene
hoher Glasanteil
hoher Glasanteil
Maksimal gjennomsiktighet
Høy glassandel på 98 %
Einbruchhemmung
Einbruchhemmung
Sikkerhet
Innbruddssikkerhet i henhold til RC3
15qm
15qm
Store elementstørrelser
15 m² glass med 34 mm omliggende ramme
Vielfältige Grundrisse
Vielfältige Grundrisse
Mange ulike grunnplaner
Skyveelementer, faste elementer og hjørneelementer kan kombineres.
Motorisierung
Motorisierung
Motorisering
Automatisk drift med gruppestyring

cero-skyvedør

Estetikk, funksjonalitet og kvalitet er de sentrale parametrene for skyvedøren cero. Smale rammer og profiler støtter gjennomsiktigheten i elementene. Den bare 34 mm tykke omliggende panelrammen og den filigrane profilen understreker det minimalistiske designet, uten at det går på kompromiss med aspekter som sikkerhet, komfort og ytelse. Systemkomponentene gir alle designfriheter som kreves av komplekse prosjekter og visjonære byggherrer. Med panelstørrelser på opptil 6 m høyde eller 4 m bredde og en maksimal panelvekt på 1000 kg får rommene en ny dimensjon av frihet.

Glassfoldevegg

En foldedør av glass byr på nesten ubegrensede muligheter. Den klarer det ingen andre fullhøydevinduer kan: Store glassfronter som lar seg åpne tilnærmet 100 % og som samtidig gir maksimal beskyttelse i lukket tilstand. I motsetning til klassiske skyvedører kan de enkelte elementene i en glassfoldevegg foldes sammen til en smal samling av paneler på siden. Denne muligheten gjør glassfoldeveggen egnet for fleksibel rominndeling i alle typer bygninger, for eksempel for romutvidelser i kontorer, detaljhandelen og serveringsbransjen, og ikke minst i skolebygg. Den grenseløse kombinasjonsevnen og optimale isolasjonsverdier gjør dem dessuten til en effektiv fasadeløsning ved modernisering av balkonger og altaner.

Bestill brosjyren vår om cero skyvedører
Vil du vite mer om cero skyvedører, ulike modeller og tekniske detaljer? Da kan du bestille brosjyren vår, enten i digital eller trykt versjon. Hvis du vil ha en trykt brosjyre, send en e-post til info.scandinavia@solarlux.com med navn og adresse. For en digital brosjyre kan du enkelt fylle ut skjemaet nedenfor.